Тел.
:+86 18924298409
Электронная почта
:info@gftrusses.com
Изогнутая наземная опора для светодиодной стены 4*3 м
Это среднего размера Изогнутая опора для грунта 4*3 м Светодиодная стенаВся конструкция изготовлена из высококачественного алюминиевого сплава, что делает её лёгкой и прочной. Этот изогнутый кронштейн можно использовать в различных условиях, например, на сценических мероприятиях и в выставочных стендах. Независимо от того, хотите ли вы создать визуальный эффект или соответствовать высоким стандартам безопасности конструкции, этот кронштейн — надёжное и профессиональное решение для вашего светодиодного экрана.
Материал :
Aluminum AlloyОтделка поверхности :
SprayingРазмер :
4×3mСистема блокировки :
Quick LockФорма здания :
CurvedСовместимый размер шкафа :
500×500mmВведение в продукт
Изогнутая наземная опора для светодиодной стены 4*3 м




Если вы ищете привлекающий внимание визуальный центр для выставки, рекламы или иммерсивного пространства, Изогнутая наземная опора для светодиодной стены 4*3 м Идеально подходит для вас. Кронштейн легко адаптируется к требованиям объекта, позволяя создавать конструкции трёх типов: по прямой, внутренней или внешней дуге. Модульная конструкция обеспечивает эффективную установку на месте и простоту обслуживания. Поверхность покрыта защитным слоем, что делает её достаточно прочной для длительного использования как внутри, так и снаружи помещения.
Продукт Список
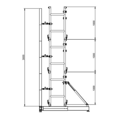
| Список конструкций: изогнутая наземная опора 4×3 м для светодиодной стены с корпусом 500×500 мм | |||
| НЕТ. | Название предмета | Спецификация | Количество |
| 1 | Регулируемая база | Материал: алюминиевый сплав 6061-Т6 Регулируемая длина: 850~1500 мм | 4/шт. |
| 2 | Направляющая балка | Материал: алюминиевый сплав 6061-Т6 Размер материала: 450*68*166 мм | 8/шт. |
| 3 | Лестничная ферма | Материал: алюминиевый сплав 6061-Т6 Основная трубка: 50*3 мм Мера: 50*500*1000мм | 12/шт. |
| 4 | Быстрый замок | Материал: алюминиевый сплав+железо растягивающийся зажим Изготавливается индивидуально под размер отверстий шкафа | 12/шт. |
| 5 | Телескопическая перекладина | Материал: алюминиевый сплав 6061-Т6 Регулируемая длина: 800~1500 мм | 21/шт. |
| 6 | Диагональные связи | Материал: алюминиевый сплав 6061-Т6 Размер материала: внешняя трубка: 50*3*650 мм; внутренняя трубка: 44*3*600 мм | 9/шт. |
Ключевые компоненты
![]() | Направляющая балка: Заземляющая балка для изогнутой светодиодной настенной опоры короче, чем те, которые используются для прямых экранов. Стандартный размер — 500 мм. Благодаря уменьшенной длине значительно проще создать идеальную и плавную дугу. Соседние заземляющие балки соединяются штифтами. Вам нужно лишь свести их вместе и вставить штифты. |
Регулируемое основание: Регулируемое основание для нашей изогнутой системы сильно отличается от основания, используемого для прямой светодиодной стены. Мы заменили традиционное прямоугольное основание на гладкое, полосчатое. Эта конструкция состоит из внутренней и внешней трубы, что позволяет выдвигать её от 850 до 1500 мм. Кроме того, основание оснащено регулируемыми ножками, что позволяет легко выровнять стойку на неровной поверхности. | ![]() |
![]() | Лестничная ферма: Лестничная ферма доступна в различных размерах: 500 мм, 900 мм, 1000 мм. и 1100мм и т.д... Мы подберем размер под ваши конкретные потребности. Все наши лестничные фермы Протестированы в реальных условиях. Мы не получили ни одного отрицательного отзыва от наших клиентов. |
Быстрая блокировка: Забудьте о сложных шурупах! Благодаря быстрому замку установка светодиодного настенного дисплея значительно ускоряется. Вам просто нужно совместить корпус с отверстием для замка и аккуратно повернуть. Соединение надёжно и занимает всего несколько секунд. Эта инновационная конструкция значительно сокращает время установки. Она также уменьшает количество используемых инструментов. Весь процесс становится проще, эффективнее и безопаснее. |
|
![]() | Замок-петля: В отличие от обычных винтовых замков, наш шарнирный замок имеет регулируемый угол наклона. Это позволяет установщикам гибко регулировать угол наклона экрана, что делает его идеальным для изогнутых или нестандартных экранов. Он гарантирует прочность и устойчивость изогнутого настенного светодиодного стенда даже при изменении угла наклона. |
Телескопическая перекладина: В отличие от перекладин фиксированной длины, используемых для наземной поддержки светодиодных экранов, телескопические перекладины имеют регулируемую длину, что делает их идеальным решением для изогнутых светодиодных стен. Поскольку перекладины фиксированной длины не могут точно соответствовать различным изгибам, гибкость телескопических перекладин позволяет им идеально подстраиваться под формы дисплеев с различными дугами. | ![]() |
![]() | Диагональные связи: Диагональные распорки — важнейший компонент наземной опоры изогнутого светодиодного дисплея. Они обеспечивают дополнительную устойчивость всей конструкции благодаря диагональной поддержке. В отличие от диагональных распорок фиксированной длины, диагональные распорки являются регулируемыми, что позволяет гибко регулировать их длину в зависимости от длины регулируемого основания и условий на объекте. |
Подножка: Подножка для изогнутой опоры на земле — это эффективное вспомогательное приспособление, специально разработанное для установки и обслуживания больших светодиодных экранов. Её уникальная конструкция оснащена двумя телескопическими зажимами на каждом конце, что позволяет надёжно крепить её к лестничным фермам, а также гибко регулировать угол наклона. |
|
| Масса: Груз, используемый для наземной опоры изогнутого светодиодного экрана, отличается от стандартных грузов. В нижней части груза предусмотрен специальный паз для надежной фиксации регулируемого основания наземной опоры изогнутого светодиодного экрана. Такая конструкция обеспечивает надежное крепление груза к регулируемому основанию. Конечно, это дополнительный компонент, который вы можете приобрести в соответствии с вашими потребностями. |
Инновационные патенты · Надежное качество

![]() | Почему вашим изогнутым экранам нужен наш запатентованный шарнирный замок? Традиционные винтовые фиксаторы часто неэффективны при сборке изогнутых светодиодных дисплеев. Они фиксируют углы и не обладают достаточной гибкостью, что делает их пригодными только для прямого соединения экранов. При работе с изогнутыми формами или изогнутыми экранами могут возникнуть неравномерные зазоры между стыками и неравномерная нагрузка на конструкцию. Это также значительно затрудняет монтаж. В конечном итоге, это даже влияет на плоскостность экрана и его визуальный эффект.
Именно поэтому компания GF-TRUSS выпустила этот запатентованный шарнирный замок. Его главное преимущество заключается в инновационной конструкции с регулируемым углом наклона. Вы можете точно отрегулировать открытие и закрытие петель, а также длину запорной планки для каждого шкафа, добиваясь плавного и естественного криволинейного соединения.
Обеспечивает прочное и надёжное соединение. Наш шарнирный замок придаст вашему изогнутому экрану идеальный вид, будь то временное мероприятие или долгосрочная установка.
Воспользуйтесь нашим запатентованным шарнирным креплением, чтобы сделать конструкцию вашего изогнутого дисплея более плоской и профессиональной. Каждый дисплей заслуживает такой эффективной, безопасной и надежной опоры. |
Оставить сообщение
Сканировать в WhatsApp :
Hi! Click one of our members below to chat on